Classic 138
Mit seinen großen hellen Fenstern und seinem schicken Äußeren stellt sich Ihr neues Zuhause Ihnen vor. Im Inneren lädt Sie das Classic 138 ein, in seinem geräumigen Wohn- und Esszimmer den Tag zu genießen.
Und für die große Familie bietet Ihnen Ihr Haus ein besonderes Extra, denn neben dem Elternschlafzimmer gibt es drei weitere Schlafzimmer! So hat auch die Familie mit drei Kindern mehr als ausreichend Platz zum Wohnen.
Ähnliche Häuser
Back
Next
Alles auf einen Blick

Wohnfläche gesamt: 138 qm
Wohnfläche EG:          74 qm
Wohnfläche DG:          64 qm

Dachneigung:                   38 °
Kniestock: 100 cm
Wohn- / Esszimmer
Erdgeschoss
1
2
3
4
5
6
Küche
WC
HWR
Diele
Gast
Alles auf einen Blick

Wohnfläche gesamt: 134 qm
Wohnfläche EG:          72 qm
Wohnfläche DG:          62 qm

Dachneigung:                   38 °
Kniestock: 100 cm
Kind 1
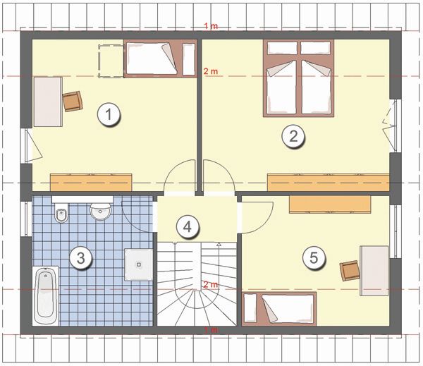
Obergeschoss
1
2
3
4
5
Eltern
Bad
Flur
Kind 2
Back
Next